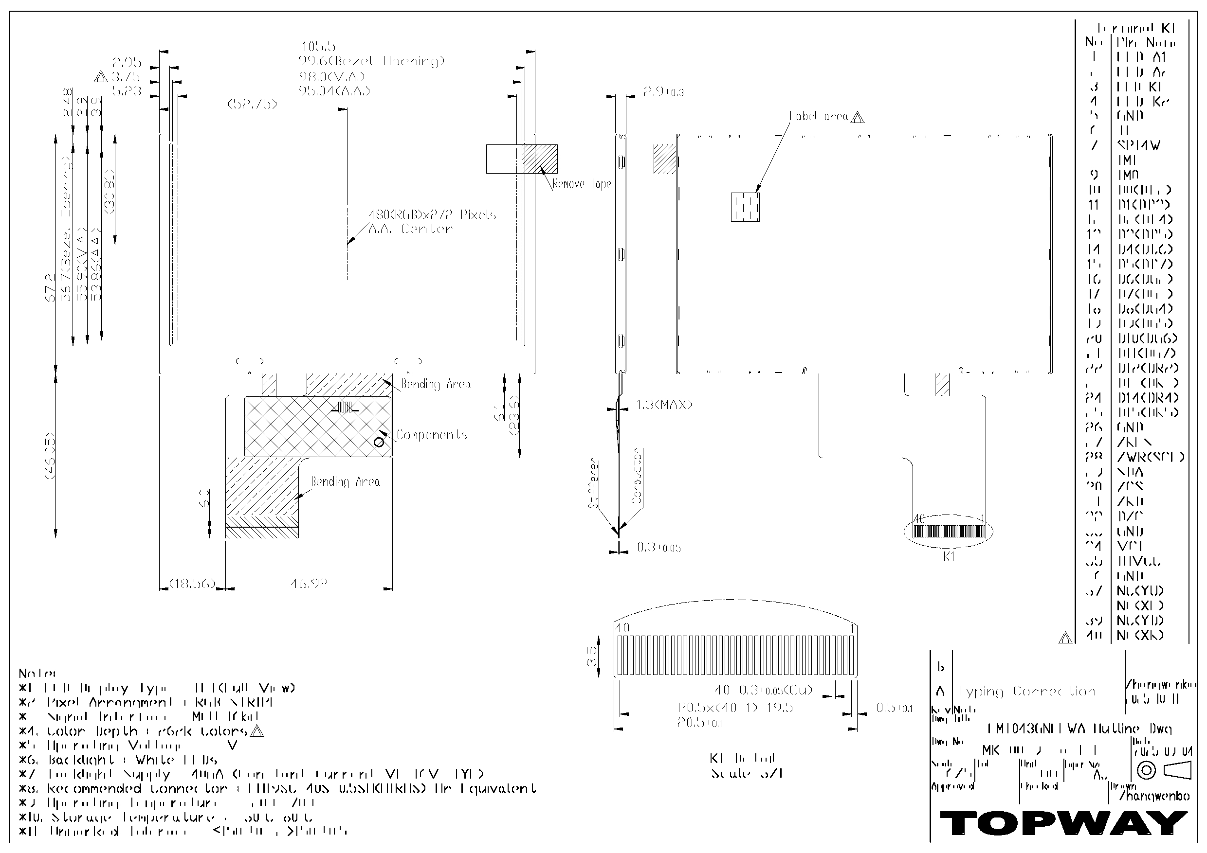
YU XL YD XR